I m   o b e r b a y e r i s c h e n


Neubau eines Einfamilienhauses mit Garage

 

Auftraggeber: privat

Ort: im oberbayerischen

Wohnfläche: EG 115 qm / OG 72 qm

Energiebedarf: 70 kWh/m2a

Zeitraum: 2015 - 2016

Leistungen: LPH 1-5, Energie


Das freistehende Einfamilienhaus liegt in ländlicher Umgebung am Ortsrand einer Gemeinde im oberbayerischen. Der einfache Baukörper mit seinem Satteldach passt sich der benachbarten Bebauung an. 

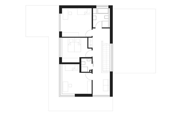
Das Einfamilienhaus erstreckt sich über zwei Geschosse und bietet den Bewohnern eine Wohnfläche von 187 m². Die angeschlossene Garage mit dem Hauswirtschaftsraum ist unterkellert. Im Keller sind die Heizung und die Abstellräume untergebracht. 

 

Das Einfamilienhaus wurde so konzipiert, dass nach einem späteren Auszug der Kinder, ohne größere baulichen Maßnahmen, zwei Wohnungen entstehen können. 

Das Erdgeschoss kann durch den Einbau einer Wohnungseingangstüre vom "Treppenhaus" getrennt werden. Im Obergeschoss wird die Brüstung bis unter das Dach verlängert und ebenfalls eine Eingangstüre eingebaut. Das nach Südwesten orientierte Kinderzimmer kann zur Wohnküche umfunktioniert werden. Alle Anschlüsse wurden bei der Errichtung des Einfamilienhauses bereits vorgesehen.